Bouw opvanghuis voor straatkinderen Honduras van start

Eind januari is men begonnen met de bouw van een nieuw opvanghuis voor de ProƱino straatkinderen in El Progreso; een stad met ruim 100.000 inwoners in Honduras. Dit mooie project wordt uitgevoerd in samenwerking met de Nederlandse stichting Homeless Child.


Wat doet Homeless Child in Honduras?
Homeless Child is opgericht met als missie om meer evenwicht te scheppen op aarde tussen arm en rijk, door kinderen in Honduras de helpende hand te reiken. De oprichter - Bas Wiersma - is als vrijwilliger regelmatig werkzaam in Honduras om het lokale management te ondersteunen en toe te zien op een juiste en efficiënte besteding van alle Nederlandse donaties.

Sinds 2002 ondersteunt Homeless Child op actieve en duurzame wijze de opvang en hulpprogramma’s voor straatkinderen en vrouwen in de stad El Progreso in Honduras. Inmiddels wonen ca. 100 kinderen en jongeren in de leeftijd van 5 t/m 19 jaar in vijf verschillende opvanghuizen. In twee andere woonhuizen worden 45 weeskinderen opgevangen. In 2012 is een permanente opvang gestart voor meisjes die slachtoffer zijn van seksuele exploitatie. Sinds 2007 is er een programma voor vrouwenrechten en geboorteplanning waaraan inmiddels 750 vrouwen deelnemen.
 
Waarom een nieuw opvanghuis?
Op dit moment worden de kinderen, die rechtstreeks van straat komen en vaak zwaar getraumatiseerd zijn, opgevangen in hetzelfde gebouw waar ook de jongste kinderen verblijven die al één of meerdere trajecten hebben doorlopen. Met de bouw van een nieuw opvanghuis worden beiden groepen gescheiden waarmee de onderlinge beïnvloeding wordt voorkomen. Naast een veiligere leefomgeving krijgen de kinderen ook een betere kans de verschillende fasen soepeler te doorlopen op weg naar een stabiele, waardige toekomst als volwassenen.
 
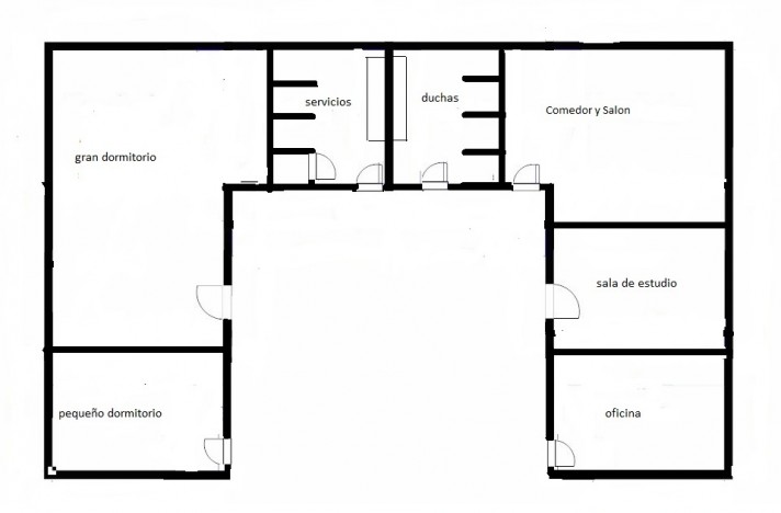
Het nieuwe opvanghuis biedt straks onderdak aan ongeveer 20 kinderen van 6 tot 12 jaar en krijgt twee slaapzalen, douches met toiletten, een studeerruimte, een eetzaal en een kantoor met slaapgelegenheid voor de begeleider. De bouw- en inrichtingskosten bedragen ca. 30.000 euro.

Hoe verloopt de bouw?
Het bouwen gebeurt door een lokale aannemer onder toezicht van Alvaro Enrique Salazar Villeda; Hoofd Technische Zaken van de opvanghuizen van Homeless Child. Ook de jongeren die een technische opleiding volgen, helpen samen met hun vaktechnische leerkrachten mee met de bouw. Zo worden de bouwkosten aanzienlijk gedrukt en doen de jongeren een schat aan werkervaring op.

Tijdens de bouwperiode worden wij wekelijks voorzien van informatie over de voortgang, financiën en planning. In de eindfase vertrekt een team van Colour4kids naar Honduras om de handen uit de mouwen te steken en mee te helpen bij de oplevering en inrichting van het nieuwe opvanghuis.

Wil jij ook een bijdrage leveren?
Dit project waarmee een veilige leefomgeving en toekomstperspectief wordt geboden aan kansarme straatkinderen in Honduras wordt voor een belangrijk deel mogelijk gemaakt door stichting ConSense en de Marthe van Rijswijck Foundation.

Wil jij ook een steentje bijdragen aan dit bijzondere project? Maak dan een donatie over naar ons rekeningnummer NL75 INGB 0000 020204 t.n.v. stichting Colour4kids. Op onze website en Facebook pagina kun je volgen wat er met jou bijdrage wordt gedaan!